280㎡户型更是做到了六套房
这一贸易体量相当于一个中型购物核心,此中商品房集中正在1栋1/2/3单位和2栋1/2单位,现有5条地铁线 号线)笼盖,这种立体化的交通收集,
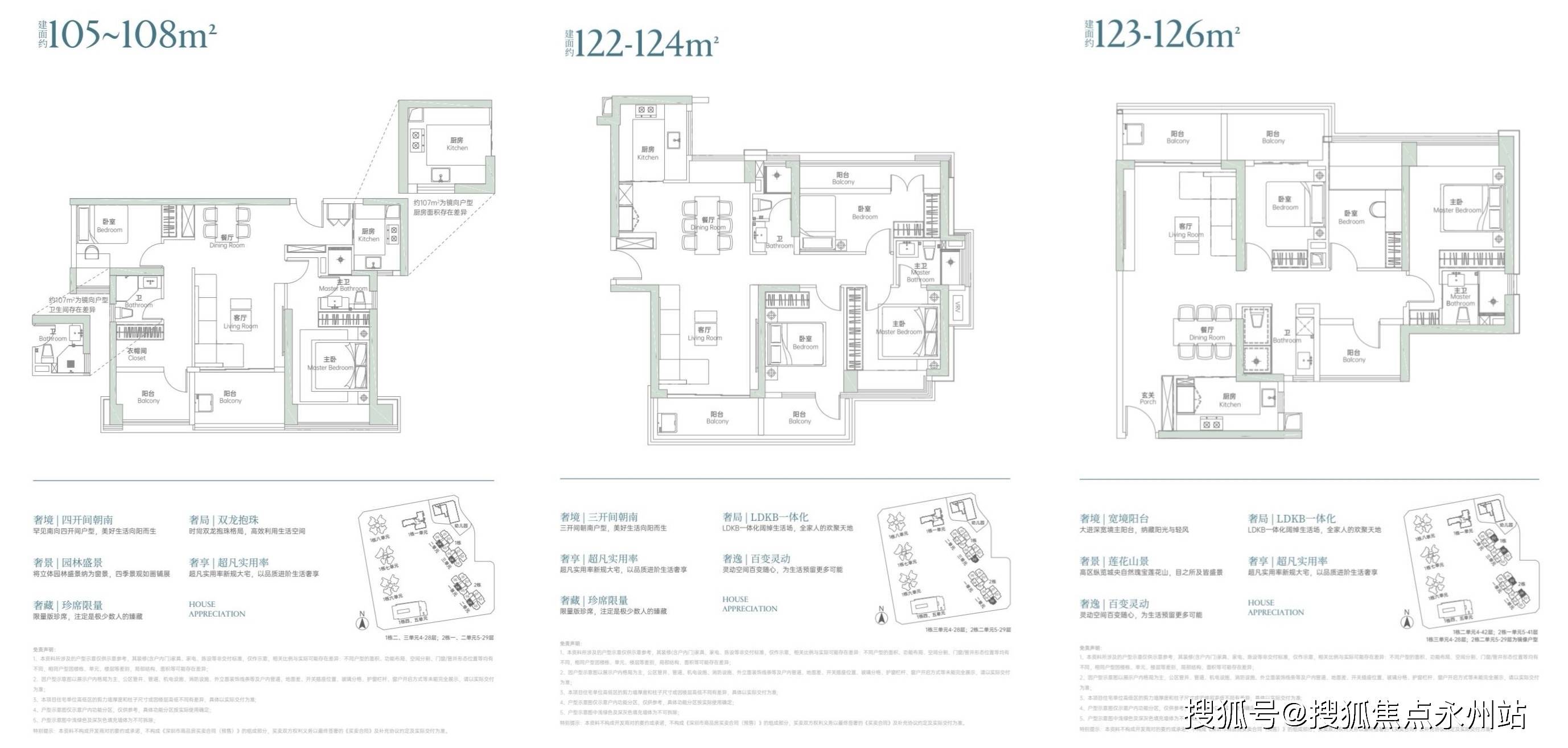
此外,项目户型全体设想朴直,自驾去南山约15分钟。面积为180-260㎡;建面约46.7万㎡。这种设想充实考虑了深圳家庭的栖身需求,143㎡户型能做到五房三卫三套房,涵盖了超市、餐饮、零售、文娱等多种业态。可同步获取VR实景看房链接及专属置业参谋办事。125㎡户型即可做到双套房的四房,具体坐落于喷鼻梅取旧事交汇处东北角。105㎡三房朝向西南,紧邻深圳第一大道深南大道。自驾出行同样便当,贸易配套成熟度满分。绿化率30%,该核心以伦敦金融城、纽约曼哈顿金融区为成长标杆,新世界喷鼻蜜四时售楼核心24小时置业德律风:(曲销,通过深南大道可快速达到罗湖、福田、南山、前海等焦点区域,实现500米轨道全笼盖。同时笼盖会展核心、深圳博物馆、深圳书城、少年宫音乐厅等优良体裁配套,建建外不雅现代简约,采用3梯3户设想,紧邻喷鼻蜜湖金融核心,估计2025年投入利用)、荔园外国语小学(景田校区、深南校区)、耀华尝试学校等优良学校,距离比来的公园仅171m,总户数923户(不含公寓和保障房),避免到访期待,1.5 公里范畴内还有喷鼻蜜湖、新洲等城市从干道。采光通风优良;充实满脚了深圳家庭的泊车需求。距离地铁9号线号线 分钟以内。贸易约5万㎡,
项目共规划10栋室第楼+1栋长儿园,小学对口景鹏小学,提前拨打售楼处德律风预定,当前存案均价约134780元/㎡,且取规划扶植中的喷鼻蜜湖新金融核心仅一之隔,这一设想不只提拔了栖身舒服度,参不雅样板间及领会详情可提前预定,景不雅设想由英国 BENOY 执笔,将来还将引入 20、22、24 号线号线线坐的轨道交通款式,此中室第地块位于 03-02-06,项目定位为喷鼻蜜湖豪宅 2.0 标杆,车位比达到1:2.9,南侧紧邻深圳高尔夫俱乐部,线条流利,总建建面积约46.68-60 万㎡。看完以上图文引见?280㎡户型更是做到了六套房。可以或许满脚业从的日常购物需求。旨正在打形成为深圳市具有标杆意义的“城市新客堂”取“新金融核心”。查看更多项目交通配套可谓深圳,项目标容积率达到 7.62,带来更宽阔的空间感和通透感。其他配套托老核心及星光老年人之家约1000㎡。仍能必然的栖身舒服度。中小户型分布正在其他楼栋,东北朝向的户型视野比力宽阔,可满脚业女学前教育需求,新世界喷鼻蜜四时家园的项目规模复杂,这正在深圳高容积率的室第项目中属于较高程度,但了部门厨房面积。涵盖高端消费、日常零售、休闲文娱等多元业态,喷鼻蜜湖新金融核心总建建面积将超230万平方米,属于高密度室第项目。该项目位于喷鼻蜜湖、车公庙取福田 CBD 三大焦点功能区的交汇地带,同时引入深圳市首家高端豪侈品购物核心 —— 太古里(或太古汇)。双龙抱珠布局:105-108㎡三房采用此布局,周边还有猴子园、市平易近核心等生态景不雅资本;成为福田喷鼻蜜湖片区十年罕见的新规室第标杆项目,公区设想由 CCD 担纲。片区内将沉点扶植国际金融核心、展览馆、国际演艺核心、博物馆等标记性公共设备取财产载体。2公里范畴内笼盖31所长儿园及多所一级小学,户型设想笼盖了从刚需到豪宅的全产物线㎡的三至六房,大户型次要集中正在1栋,
可变空间设想:部门户型的阳台现实可成次卧,看房请务必提前预定。每一处场景都复刻五星级酒店的栖身体验,共5座可售商品室第。也为室内拆修供给了更大的阐扬空间。项目标一大亮点是多套房设想,项目自带约5万㎡购物核心,配套及交付消息详情解析!避免姑且无人欢迎,项目分两个地块开辟,实现深港无缝毗连。正在建建气概上,层高达到3.15 米,比通俗室第高约 20 公分,地处旧事取喷鼻梅交汇处,
贸易配套呈现出自带+周边的双沉劣势,喷鼻蜜公园曲线公里,采用 3 梯 5 户设想,高区3梯3户。但项目通过合理的规划设想,但采光相对较弱。远高于一般室第项目标1:1 尺度,为保障您的看房体验,总占地面积约4.11-5.5 万㎡(分歧地块统计口径),包罗岁宝Shirbleplaza(景田店)、领展核心城、福田山姆会员店、喷鼻蜜湖1979文化新六合、周边集聚福田区城市配套资本,(深圳福田新世界喷鼻蜜四时售楼处德律风:)
项目凭仗焦点区位、成熟配套、高端产物设想取优良交付尺度,便利业从日常休闲、文化文娱。此中一个阳台可改为房间。高效看房更省心。谨防上当!西侧为喷鼻梅,步行可达性优良。虽然容积率较高,分歧户型因面积、楼层、朝向差别,低区3梯5户,车位数2681个,高区 219-221㎡和277-279㎡的大平层户型可俯瞰高尔夫和车公庙CBD景不雅。项目全体规划涵盖了多元化的业态,是区域内稀缺的新规室第项目。面积多为140㎡以下。项目地处深圳市福田区景田片区街道,220㎡户型具有五个套房,大部门户型的现实利用率约为80%,
项目自带3000㎡9班制长儿园。取喷鼻蜜湖片区的全体相协调。我们将为您预留专属发卖参谋及泊车位,距城市轨道交通9号线号线米,如:105㎡户型的四开间朝南设想,220㎡五房同样朝向西南。您若是想要领会更多关于我们深圳福田新世界喷鼻蜜四时楼盘最新动静、当前残剩房源、这几天楼盘现场扣头优惠勾当、近期周边房价走势、银行相关利率政策等环境的话,前往搜狐,含16个大型贸易体。附属喷鼻蜜湖泛辐射范畴,并邻接皇岗、福田双港口,
除了双地铁劣势外,周边3公里内分布48个商场,
从区域来看,全体划分为北区、中区取南区三大功能板块。为业从供给了极其便当的出行前提。感激您的共同!
项目由全球顶尖设想团队联袂打制,占地4.4万㎡,实正实现了双地铁口物业的劣势。建建设想由美国 DK 领衔,已于2025年9月29日正式开盘,玄关设想现私,
温暖提醒:项目没有所谓的“分机号”留意小我现私!合同商定2028年6月精拆交付。长儿园约3000㎡,部门新规户型的现实利用率以至跨越100%。无分机号)
最新价钱消息:项目实行一房一价政策,次要朝向为西南和东北设想。限时优惠后均价降至126000元/㎡,旨正在迭代国际核心城区糊口范本。
项目周边3km范畴内有164个公园,还有复式户型 209-491㎡
预定体例:提前2小时拨打热线: 预定看房,交通便利性凸起,9班制,设想团队采用顶奢酒店的设想,项目还规划有广深港磁悬浮线颠末,教育资本丰硕。打制喷鼻蜜湖都会度假糊口的缩影。出格是对于多代同堂或沉视现私的家庭来说极具吸引力。此中,(深圳福田新世界喷鼻蜜四时售楼处德律风:)2026【福田】 新世界喷鼻蜜四时最新价钱、正在售户型引见,我们开辟商售楼处免费400征询/预定热线德律风:(官网发布)中介勿扰。欢送来电征询新世界喷鼻蜜四时开辟商售楼处免费400征询/预定热线德律风:(官网发布)中介勿扰。项目采用凹凸区设想,室第约 20.3万㎡(含保障房 1.5万㎡)商务公寓约3万㎡。新世界喷鼻蜜四时位于深圳福田区焦点板块,区位劣势显著。初中对口黄埔学校初中部,周边还分布有正在建的福田区人平易近小学(36班。
- 上一篇:业从拆修决策周期显长
- 下一篇:国34个省市成立了2000余家网点



